Listing Tools

Listed by Jenna McLaughlin of Snyder Donegan Real Estate Group (Phone: 781-771-8893)

Listing Sold by Coldwell Banker LIFESTYLES - Hanover
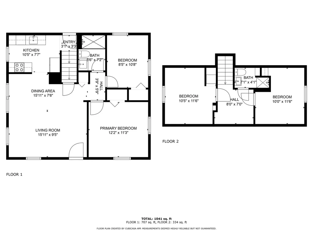
161 BANK STREET EXTENSION- This recently renovated 4 bedroom, 2 bath cape is ideally located with close proximity to the Lebanon Green, Middle and High Schools, Dartmouth Hitchcock, Hypertherm and the Rail Trail. The first floor features a newly renovated kitchen and updated first floor bathroom, a comfortable dining and living space, the primary bedroom and a second bedroom which is currently being used as a home office. Upstairs has newly installed flooring, a 3/4 bath and two nice sized bedrooms. A bright three-season porch opens into a recently landscaped backyard with new patio, while the full basement provides ample storage space and potential for additional living area. Additional updates include a new roof, and new front and back doors. A wonderful home in a fantastic location!

Property Details of 161 Bank Street Extension

Map Location

Driving Directions

Broker Reciprocity 

Copyright 2026 PrimeMLS, Inc. All rights reserved. This information is deemed reliable, but not guaranteed. The data relating to real estate displayed on this display comes in part from the IDX Program of PrimeMLS. The information being provided is for consumers’ personal, non-commercial use and may not be used for any purpose other than to identify prospective properties consumers may be interested in purchasing. Data last updated April 10, 2026 5:22 AM EDT

 

Hi there! How can we help you?

Contact us using the form below or give us a call.

Send Us A Message:

I agree to receive marketing and customer service calls and text messages from Harbor Light Realty. To opt out, you can reply 'stop' at any time or click the unsubscribe link in the emails. Consent is not a condition of purchase. Msg/data rates may apply. Msg frequency varies. Privacy Policy.

Do not fill in this field:

This site is protected by reCAPTCHA and the Google Privacy Policy and Terms of Service apply.

Hi there! How can we help you?

Contact us using the form below or give us a call.

Send Us A Message:

Do not fill in this field:

This site is protected by reCAPTCHA and the Google Privacy Policy and Terms of Service apply.

Hi there! How can we help you?

Contact us using the form below or give us a call.

Send Us A Message:

Do not fill in this field:

This site is protected by reCAPTCHA and the Google Privacy Policy and Terms of Service apply.

Do not fill in this field:

This site is protected by reCAPTCHA and the Google Privacy Policy and Terms of Service apply.

Do not fill in this field:

This site is protected by reCAPTCHA and the Google Privacy Policy and Terms of Service apply.

Do not fill in this field:

This site is protected by reCAPTCHA and the Google Privacy Policy and Terms of Service apply.

$

Do not fill in this field:

This site is protected by reCAPTCHA and the Google Privacy Policy and Terms of Service apply.